Germain Bousson.
119 rue Réaumur, Paris
-
Réhabilitation d'un immeuble de bureaux
Client : Tishman Speyer
Surface : 2.300 m2
Construit en 1900 par l’architecte Germain Bousson, cet immeuble reflète l’architecture commerciale emblématique du début du XXe siècle. Sa charpente métallique, caractéristique des constructions de l’époque, met en valeur le lien entre fonctionnalité et esthétique. L’élégance du bâtiment se distingue par la juxtaposition harmonieuse de grandes ouvertures vitrées et de pierres de taille, organisées en cinq travées, créant une structure à la fois solide et raffinée.
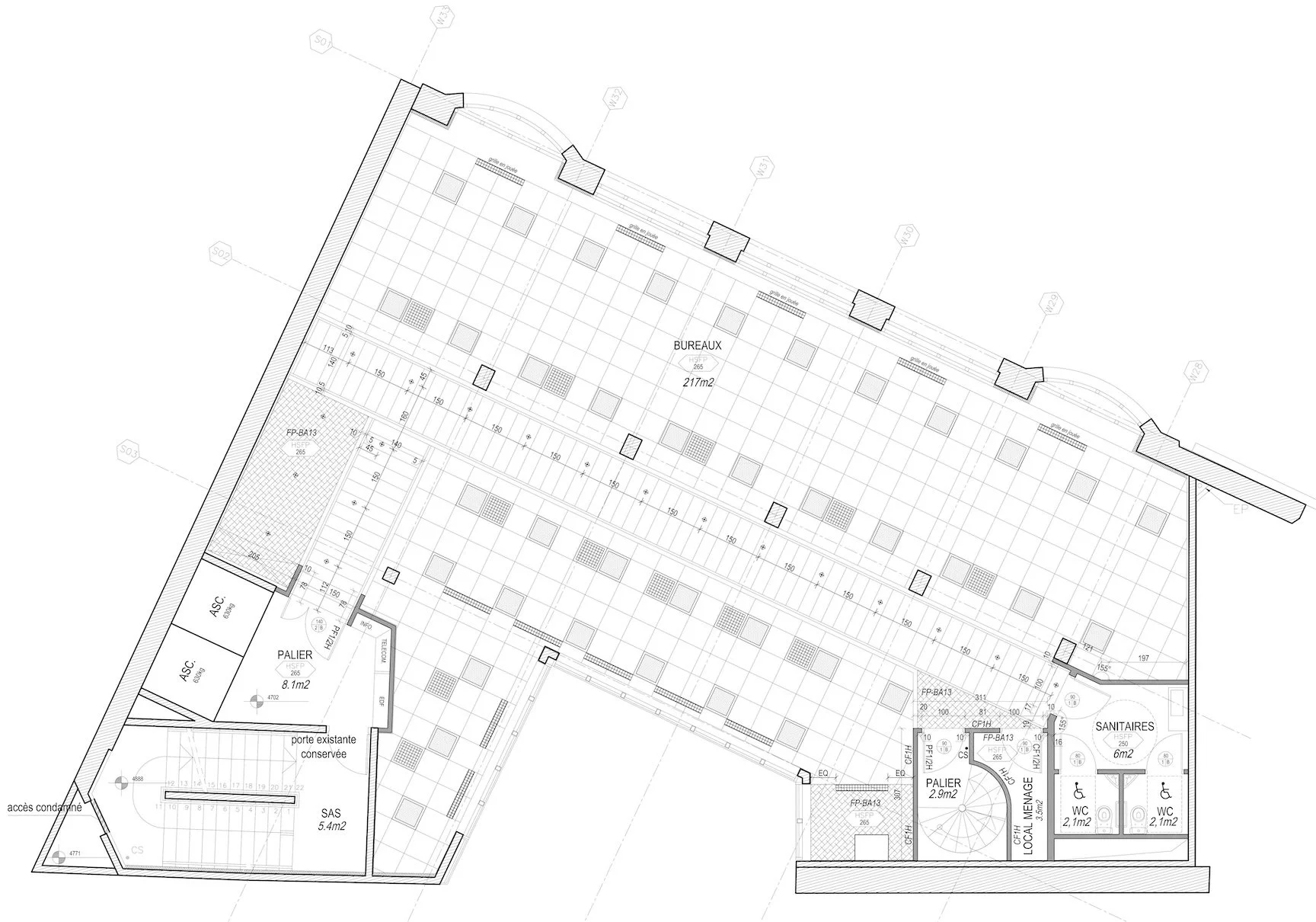
Notre projet concerne la réhabilitation des 2300 m² de bureaux, désormais livrés en open-space avec un plancher technique adapté. Ces espaces ont été mis aux normes, notamment en termes de sécurité incendie et d’accessibilité handicapés, en réponse à la densification des étages. Chaque détail a été pensé pour offrir un environnement moderne et conforme aux exigences contemporaines.
Le design du lobby constitue un contraste voulu par le client avec le classicisme de la façade. L’escalier et les garde-corps en verre ont fait l’objet d’une attention particulière, tandis que mobilier Mies Van Der Rohe insuffle une modernité subtile à l’espace d’attente. Depuis la rue, les lignes droites et blanches de l’intérieur dialoguent avec les lignes courbes et ocres de la façade, créant un jeu visuel captivant entre les deux époques.
État avant travaux.

